

How to Make a Small Bathroom Look Bigger
Sometimes a few small tweaks can make all the difference. For this primary bath renovation, designer Amanda Hickam of Harper Harris Design made simple but strategic design moves to maximize space and provide a better flow.

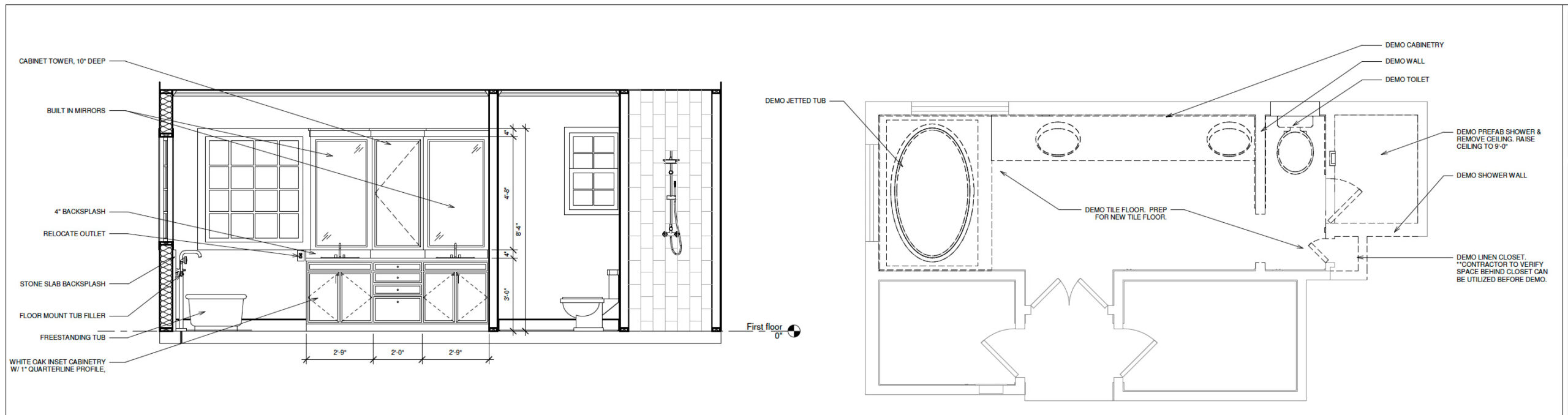
Trouble spots included a much-too-long vanity that took up floor space and butted against a built-in tub surround. The pre-fab shower was past its prime and way too low and cramped, and the water closet much too visible.
“White marble counters, crisp white cabinetry, classic mosaic floors, and unlacquered brass accents are timeless materials that still feel effortlessly modern.”
– Designer Amanda Hickam


Small Bathroom, Big Upgrade
Her solutions? Replace the clunky tub with a freestanding style and shorten the vanity and add a storage tower between the sinks to make up for lost cabinet space. She also rotated the toilet and portioned off the water closet on its own. “We now have a clear visual line all the way through the entire length of the bathroom,” Amanda says.


Amanda Hickam | Harper Harris Design
Amanda’s Top 5 Must-Haves for a Winning Bath
- Make storage glamorous. Ample, well-organized cabinetry and drawers keep every beauty and skin-care product at arm’s reach—and off the counters—for a polished, clutter-free look.
- Protect prime-time routines. A separate water closet and a roomy double vanity let two people get ready at once, safeguarding both storage space and marital harmony.
- Linger a little longer. A deep, comfortable bathtub invites long soaks, quiet moments, and the feeling of a private spa at home.
- Insist on hardworking hardware. Beautiful plumbing fixtures should double as jewelry for the room while delivering reliable, powerful water pressure.
- Straighten every line. Perfectly placed, level tile and crisp grout lines keep the eye at ease, so nothing distracts from a calm, relaxing shower.
Resources
Builder: Leo Payne, LP Construction LLC Fabricator: Surface One Fixtures: Fixtures and Finishes Cabinet design and construction: Village Woodworks Cabinetry Hardware: Brandino Brass Tile and marble: Triton Stone Chair: The Homeowner’s Sconces: Visual Comfort Mirrors: The French Door Antiques Art in window: Design Supply





